Ufficio in affitto

Treviso, Via Fonderia - Santa Maria Del Rovere
€ 5.880 / mese
12 locali 12 locali
610 Mq 610 Mq
3 bagni 3 bagni

Ufficio in affitto

Treviso, Via Fonderia - Santa Maria Del Rovere

Descrizione annuncio

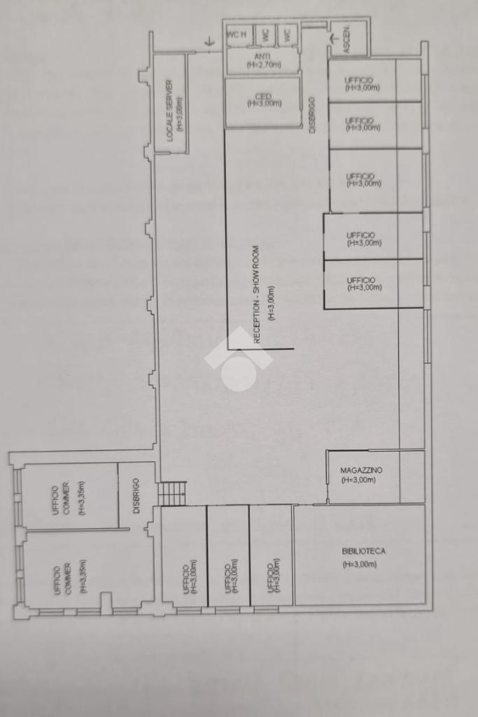
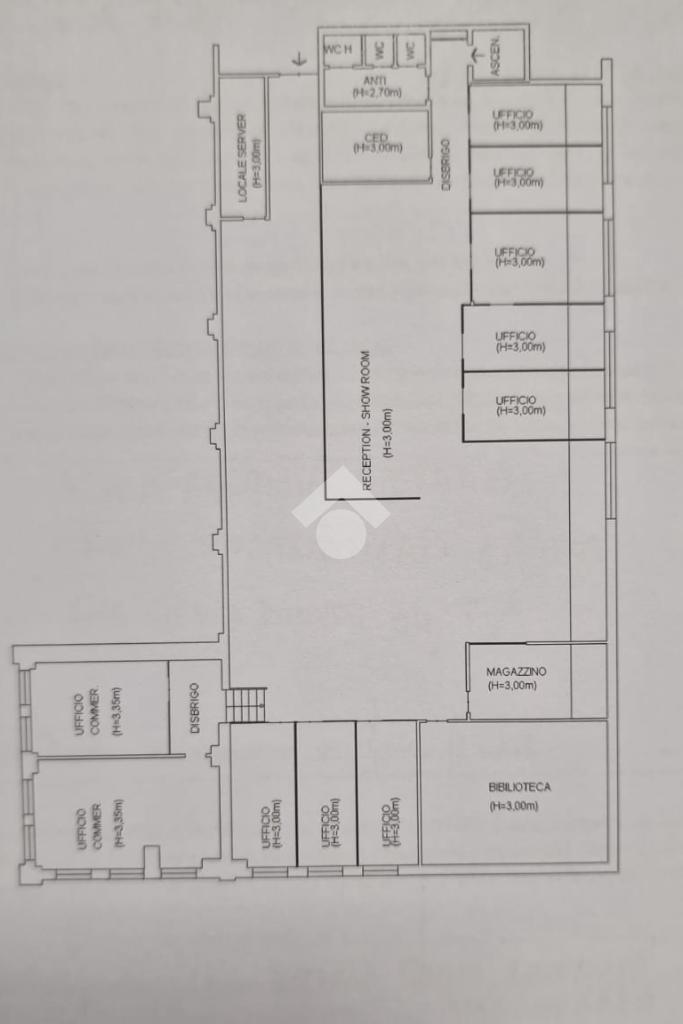
Tecnocasa immobili per l’impresa propone in esclusiva in locazione un ufficio direzionale di 600mq, situato al primo piano con ascensore di un edificio in Via Fonderia, nelle immediate vicinanze di Viale della Repubblica, una delle principali arterie commerciali di Treviso.

L’unità è così suddivisa:

Reception, perfetta per accogliere clienti e partner in un ambiente raffinato;11 locali ideali per studi professionali e/o aziende;2 servizi igienici completi di antibagno;1 servizio igienico a norma disabile;1 magazzino per una gestione ottimale dello spazio e/o archivio documenti.

L’ufficio è dotato di un impianto di riscaldamento e raffreddamento centralizzato con fancoil, garantendo il massimo confort in ogni stagione.

L’immobile gode di ottima luce naturale grazie alla presenza di vetrate.

Numerosi sono inoltre i parcheggi liberi nelle immediate vicinanze, perfetti per ospiti e collaboratori.

Ogni spazio è stato studiato per offrire un ambiente di lavoro raffinato, moderno ed efficiente, ideale per aziende che desiderano distinguersi e accogliere clienti e partner in un contesto prestigioso.

Il canone di locazione è pari a Euro 5.880,00 + IVA.

Le spese condominiali sono pari a Euro 4.000,00/ anno comprensive di riscaldamento

Un’opportunità unica per chi cerca un ufficio di prestigio in una posizione strategica a Treviso.

Mostra tutto

Nelle vicinanze

Trasporto pubblico Trasporto pubblico
stazione di Lancenigo
stazione di Lancenigo
2,9 Km
stazione di Treviso Centrale
stazione di Treviso Centrale
2,9 Km
Trasporto pubblico
340 m
Bivio Strada Ovest
Bivio Strada Ovest
800 m
Ricariche auto elettriche Ricariche auto elettriche
Biosapori S.r.l.
570 m
LIDL Treviso
620 m
Lancenigo Fontane | EnelX
960 m
DBA Progetti SpA | EnelX
1,6 Km
MOM - Via Toniolo
2,5 Km
Scuole Scuole
Scuola Parucchieri Estetisti
370 m
Scuole
420 m
Scuola dell'infanzia Carmen Frova
540 m
Ic Martini
570 m
ITIS "Enrico Fermi"
870 m
Farmacia Farmacia
Farmacia
540 m
Comunale N.7 G. Marconi
1,5 Km
Farmacia Callegari s.n.c.
1,6 Km
Farmacia Selvana
2,1 Km
Farmacia Sant'Agostino
2,1 Km
Ospedali Ospedali
Ospedale generale di zona San Camillo
1,3 Km
Centro di Medicina
1,4 Km
Madonnina
2,8 Km
Ospedale Ca' Foncello
3,0 Km
Supermercati Supermercati
Market
390 m
Altromercato
530 m
Biosapori
590 m
LIDL
630 m
Supermercati Aldi
630 m
Negozi Negozi
Panificio Pasticceria Casellato
330 m
Sorelle Ramonda Outlet
340 m
Negozi
340 m
Acqua & Sapone
2,1 Km
Liu Jo
2,2 Km
Bar Bar
Bar
940 m
Il Regno di Gambrinus
1,1 Km
Bar Ganassi
1,5 Km
Vecio Portego
2,0 Km
Osteria Muscoli
2,2 Km
Ristoranti Ristoranti
Pizzeria "Da Carla"
330 m
Da Pino
810 m
Osteria al Norge
960 m
Ristoranti
960 m
Galloway
1,1 Km
Mostra tutto

Caratteristiche

Rif.:
61183829
Piano:
1 di 2 (Piano basso)
Condizionamento:
Centralizzato
Ascensore:
No
Riscaldamento:
Centralizzato
Libero:
Mostra tutto
Prezzo Prezzo
€ 5.880 / mese
Spese annue Spese annue
€ 4.000

Classe Energetica

D
D
D
D
D
D
D
D
D
EP globale non rinnovabile:
139.71 kW h/m² anno
EP globale rinnovabile:
0.00 kW h/m² anno
EP invernale del fabbricato:
EP estiva del fabbricato:
Anno di costruzione:
1970
Riscaldamento:
Centralizzato
Tipo impianto:
Ad aria
Tipo alimentazione:
Aria

Ti interessa visionare l'immobile?

Fissa un appuntamento  Fissa un appuntamento

Richiedi informazioni

Clicca su Leggi per aprire l'informativa
* Questi campi sono obbligatori
Affiliato
Industriale Lvs Sas
Via Giacomo Zanella, 4/B 31100 Treviso (TV)

Il nostro staff


  • Angelo Matteo Casellato
    Affiliato

  • Andrea Giuliotto
    Collaboratore

  • Dejan Krcmar
    Collaboratore

  • Riccardo Sartorato
    Collaboratore
Via Giacomo Zanella, 4/B 31100 Treviso (TV)
Zona: Treviso Nord
Mostra su mappa
Affiliato
Industriale Lvs Sas
Via Giacomo Zanella, 4/B 31100 Treviso (TV)

2026 Tecnocasa Franchising S.p.A. - P. IVA 08365160152 - Via Monte Bianco 60/A 20089 Rozzano (MI). Ogni agenzia ha un proprio titolare ed è autonoma. Privacy policy | Policy utilizzo | Cookie policy