Capannone in vendita

Villorba, Via Alfred Nobel - Bardagole
€ 330.000
2 locali 2 locali
505 Mq 505 Mq
1 bagno 1 bagno

Capannone in vendita

Villorba, Via Alfred Nobel - Bardagole

Descrizione annuncio

CAPANNONE INDUSTRIALE/ARTIGIANALE DI PREGIO - VILLORBA (TV)


Immobile: Capannone ristrutturato nel 2018
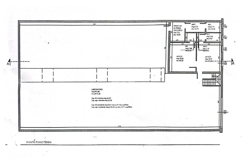
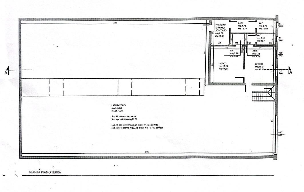
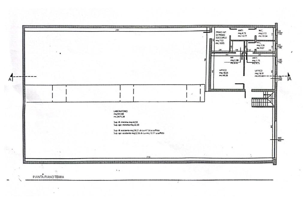
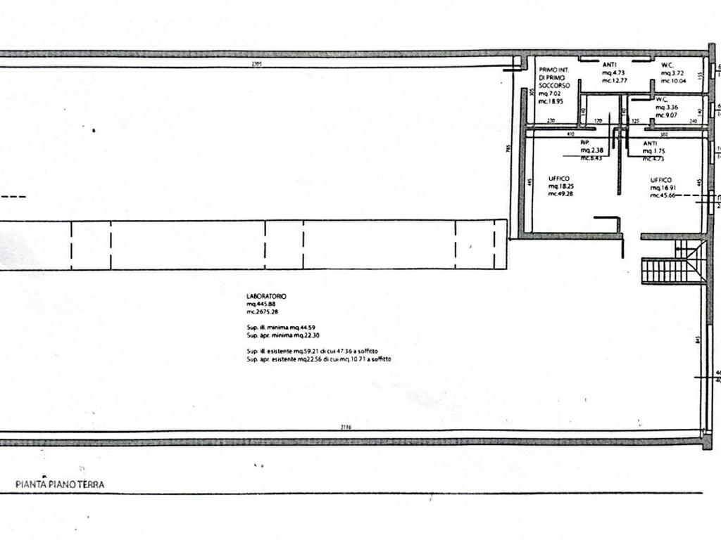
Superficie Totale: 505 mq

Magazzino/Area Produttiva: 455 mq

Uffici su due livelli: 120 mq

Area Scoperta Privata: circa 200 mq

Ubicazione: Comune di Villorba (TV), zona strategica e servita.

DESCRIZIONE

Benvenuti in un capannone di recente ristrutturazione, situato in una posizione comoda e logistica a Villorba. Questo immobile, perfetto per attività industriali, artigianali, distributive o di logistica, unisce la funzionalità di un'area produttiva spaziosa al comfort di uffici moderni e completamente rifatti.

CARATTERISTICHE PRINCIPALI:

Zona Magazzino/Produzione (455 mq):

Ampia superficie libera e versatile.

Portone camionabile per un comodo accesso e movimentazione delle merci.

Altezze interne 6 metri.

Zona Uffici su Due Livelli (120 mq):

Ingresso indipendente e separato dall'area produttiva.

Completamente ristrutturata nel 2018.

Riscaldamento e Raffrescamento autonomo e ad alta efficienza tramite pompa di calore.

Infissi di nuova generazione per massimo comfort termico e acustico.

Rifacimento completo di: pavimentazioni, porte interne e servizi igienici.

Dotazioni Tecniche & Interventi di Ristrutturazione (2018):

Impianto Fotovoltaico per l'autoproduzione di energia e un significativo risparmio sui costi energetici.

Rifacimento completo del tetto (2018), garanzia di massima tenuta e sicurezza.

Impianti elettrici e idraulici a norma.

Area Esterna:

Circa 200 mq di area scoperta privata, ideale per parcheggio, stoccaggio o manovre.

RIASSUNTO CARATTERISTICHE:

Superficie totale: 505 mq

Magazzino/Produzione: 455 mq

Uffici su 2 livelli: 120 mq

Area scoperta privata: 200 mq

Portone camionabile

Ingresso uffici indipendente

Riscaldamento e raffrescamento (Pompa di Calore) negli uffici

Ristrutturato nel 2018 (tetto, infissi, bagni, pavimenti uffici)

Impianto Fotovoltaico

Zona logistica strategica a Villorba (TV)

Mostra tutto

Nelle vicinanze

Trasporto pubblico Trasporto pubblico
stazione di Lancenigo
stazione di Lancenigo
2,8 Km
Trasporto pubblico
460 m
Ricariche auto elettriche Ricariche auto elettriche
Villorba Vittorio Emanuele II | EnelX
1,5 Km
Catena Pinarello | EnelX
1,6 Km
Municipio di Villorba | EnelX
2,3 Km
Lancenigo Piave | EnelX
2,9 Km
Scuole Scuole
Scuola Elementare G.Marconi
1,5 Km
Scuole
1,5 Km
Scuola Elementare Statale Scarpa
1,8 Km
Scuola Media Statale Scarpa
1,8 Km
Scuola Media Manzoni
2,2 Km
Farmacia Farmacia
Farmacia
1,4 Km
Farmacia Fides Dott.ssa Chiaradia
1,4 Km
Farmacia A Carità
2,2 Km
Farmacia di Lancenigo Dr. Tonolo
3,0 Km
Ospedali Ospedali
Casa di riposo e Centro diurno "Gino e Pierina MARANI"
450 m
Avis Villorba - Centro donazioni
560 m
Supermercati Supermercati
Panorama Centro Commerciale Villorba
1,3 Km
Supermercati
2,3 Km
Despar
2,9 Km
Crai
2,9 Km
Negozi Negozi
Atelier " La Sposa"
450 m
Negozi
560 m
Sorelle Ramonda
620 m
UNO
750 m
Panetteria
1,4 Km
Bar Bar
Bowling
990 m
Nostro Bar
1,3 Km
Fantin
1,4 Km
Trevissa
1,4 Km
Dersut Cafè
1,5 Km
Ristoranti Ristoranti
Trattoria Alle Castrette
420 m
Osteria "Da Vicino"
990 m
Sagari video Pub
1,4 Km
Trattoria Coppi "ai bocia del '24"
1,5 Km
L'invito
1,5 Km
Mostra tutto

Caratteristiche

Rif.:
61129152
Piano:
1 di 2 (Piano su più livelli)
Condizionamento:
Autonomo
Ascensore:
No
Riscaldamento:
Autonomo
Giardino:
Privato
Mostra tutto
Prezzo Prezzo
€ 330.000
Rata mutuo Rata mutuo
€ 1.556 / mese
Spese annue Spese annue
€ 0
Proponi il tuo prezzoProponi il tuo prezzo

Altre caratteristiche

Descrizione dei locali
Bagno Con Finestra

Classe Energetica

B
B
B
B
B
B
B
B
B
EP globale non rinnovabile:
62.67 kW h/m² anno
EP globale rinnovabile:
0.00 kW h/m² anno
EP invernale del fabbricato:
EP estiva del fabbricato:
Anno di costruzione:
1980
Riscaldamento:
Autonomo
Tipo impianto:
Ad aria
Tipo alimentazione:
Aria

Ti interessa visionare l'immobile?

Fissa un appuntamento  Fissa un appuntamento

Richiedi informazioni

Clicca su Leggi per aprire l'informativa
* Questi campi sono obbligatori

Calcola il tuo mutuo

Semplice e senza impegno
Anticipo

( % )
Mutuo

( % )

pochi semplici passi

inserisci i tuoi dati
Questionario completato
Grazie per aver richiesto un appuntamento senza impegno con un nostro Consulente del Credito e Assicurativo.

Hai inserito correttamente tutti i dati necessari e a breve riceverai una e-mail con un link da convalidare per inviare i tuoi dati.
Affiliato
Industriale Lvs Sas
Via Giacomo Zanella, 4/B 31100 Treviso (TV)

Il nostro staff


  • Angelo Matteo Casellato
    Collaboratore

  • Andrea Giuliotto
    Collaboratore

  • Dejan Krcmar
    Collaboratore

  • Riccardo Sartorato
    Collaboratore
Via Giacomo Zanella, 4/B 31100 Treviso (TV)
Zona: Treviso Nord
Mostra su mappa
Affiliato
Industriale Lvs Sas
Via Giacomo Zanella, 4/B 31100 Treviso (TV)

2025 Tecnocasa Franchising S.p.A. - P. IVA 08365160152 - Via Monte Bianco 60/A 20089 Rozzano (MI). Ogni agenzia ha un proprio titolare ed è autonoma. Privacy policy | Policy utilizzo | Cookie policy