Ufficio in affitto

Villorba, Via Thomas Alva Edison - Bardagole
€ 3.000 / mese
Prezzo aggiornato
13 locali 13 locali
1100 Mq 1100 Mq
4 bagni 4 bagni

Ufficio in affitto

Villorba, Via Thomas Alva Edison - Bardagole

Descrizione annuncio

Oggetto: Locazione Immobile Direzionale a Villorba (TV) - 1.100 mq

Descrizione:

L'immobile si sviluppa come segue:

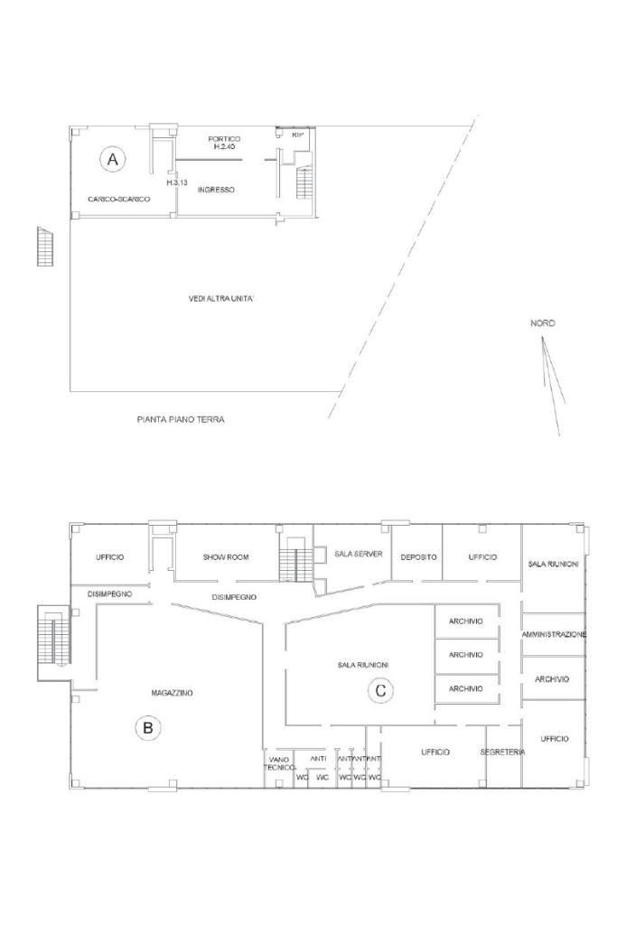
Piano Terra: Accoglie i clienti e il personale con un'ampia e luminosa zona d'ingresso con scrivania per l'accettazione. Completano il piano un magazzino di circa 70 mq, dotato di portone camionabile per la movimentazione delle merci.

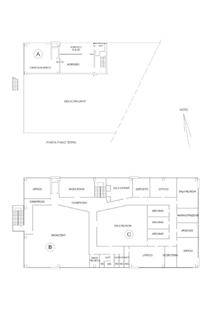
Primo Piano: Accessibile sia tramite scale che con un pratico ascensore montacarichi che serve entrambi i livelli, offre un secondo magazzino di circa 250 mq, Il resto della superficie, per un totale di circa 780 mq, è stato intelligentemente adibito a:

Open space e uffici privati

Archivi

Servizi igienici per il personale (nuovi o rinnovati)

Dotazioni e Caratteristiche Tecniche:

Ristrutturazione Recente: Interni completamente rinnovati, pronto per l'uso immediato.

Climatizzazione Completa: Impianto di riscaldamento e raffrescamento autonomo tramite fan coil presente in tutti i locali, garantendo il massimo comfort in ogni stagione.

Ascensore Montacarichi: Essenziale per il collegamento verticale e il trasporto di merci tra il magazzino a piano terra e quello al primo piano.

Posizione Strategica: Villorba è facilmente raggiungibile grazie alla vicinanza all'autostrada A27 e alla tangenziale di Treviso, ideale per aziende che operano a livello regionale e nazionale.

Mostra tutto

Nelle vicinanze

Trasporto pubblico Trasporto pubblico
stazione di Lancenigo
stazione di Lancenigo
2,8 Km
Trasporto pubblico
400 m
Ricariche auto elettriche Ricariche auto elettriche
Villorba Vittorio Emanuele II | EnelX
1,5 Km
Catena Pinarello | EnelX
1,6 Km
Municipio di Villorba | EnelX
2,3 Km
Lancenigo Piave | EnelX
2,9 Km
Scuole Scuole
Scuola Elementare G.Marconi
1,4 Km
Scuole
1,5 Km
Scuola Elementare Statale Scarpa
1,8 Km
Scuola Media Statale Scarpa
1,9 Km
Scuola Media Manzoni
2,3 Km
Farmacia Farmacia
Farmacia Fides Dott.ssa Chiaradia
1,4 Km
Farmacia
1,4 Km
Farmacia A Carità
2,2 Km
Farmacia di Lancenigo Dr. Tonolo
2,9 Km
Ospedali Ospedali
Casa di riposo e Centro diurno "Gino e Pierina MARANI"
380 m
Avis Villorba - Centro donazioni
500 m
Supermercati Supermercati
Panorama Centro Commerciale Villorba
1,2 Km
Supermercati
2,2 Km
Despar
2,9 Km
Crai
3,0 Km
Negozi Negozi
Atelier " La Sposa"
390 m
Negozi
500 m
Sorelle Ramonda
570 m
UNO
760 m
Panetteria
1,5 Km
Bar Bar
Bowling
1,0 Km
Nostro Bar
1,3 Km
Trevissa
1,4 Km
Fantin
1,4 Km
Dersut Cafè
1,5 Km
Ristoranti Ristoranti
Trattoria Alle Castrette
360 m
Osteria "Da Vicino"
950 m
Sagari video Pub
1,4 Km
Trattoria Coppi "ai bocia del '24"
1,4 Km
L'invito
1,5 Km
Mostra tutto

Caratteristiche

Rif.:
61115979
Piano:
1 di 2 (Piano su più livelli)
Condizionamento:
Autonomo
Ascensore:
No
Riscaldamento:
Autonomo
Libero:
Mostra tutto
Prezzo Prezzo
€ 3.000 / mese
Spese annue Spese annue
€ 0

Classe Energetica

B
B
B
B
B
B
B
B
B
EP globale non rinnovabile:
259.00 kW h/m² anno
EP globale rinnovabile:
0.00 kW h/m² anno
EP invernale del fabbricato:
EP estiva del fabbricato:
Riscaldamento:
Autonomo
Tipo impianto:
Ad aria
Tipo alimentazione:
Aria

Prezzo ridotto di €1 (15%%)

Ti interessa visionare l'immobile?

Fissa un appuntamento  Fissa un appuntamento

Richiedi informazioni

Clicca su Leggi per aprire l'informativa
* Questi campi sono obbligatori
Affiliato
Industriale Lvs Sas
Via Giacomo Zanella, 4/B 31100 Treviso (TV)

Il nostro staff


  • Angelo Matteo Casellato
    Collaboratore

  • Andrea Giuliotto
    Collaboratore

  • Dejan Krcmar
    Collaboratore

  • Riccardo Sartorato
    Collaboratore
Via Giacomo Zanella, 4/B 31100 Treviso (TV)
Zona: Treviso Nord
Mostra su mappa
Affiliato
Industriale Lvs Sas
Via Giacomo Zanella, 4/B 31100 Treviso (TV)

2025 Tecnocasa Franchising S.p.A. - P. IVA 08365160152 - Via Monte Bianco 60/A 20089 Rozzano (MI). Ogni agenzia ha un proprio titolare ed è autonoma. Privacy policy | Policy utilizzo | Cookie policy